MITA II asym Messungen Gehäuse und Holzzuschnitte Frequenzweiche Stückliste
Die Gehäuseskizze gilt für den Aufbau aus 19 mm MDF. Bei Verwendung anderer Materialstärken (z.B. 18 oder 20 mm MPX) müssen die Maße entsprechend umgerechnet werden.
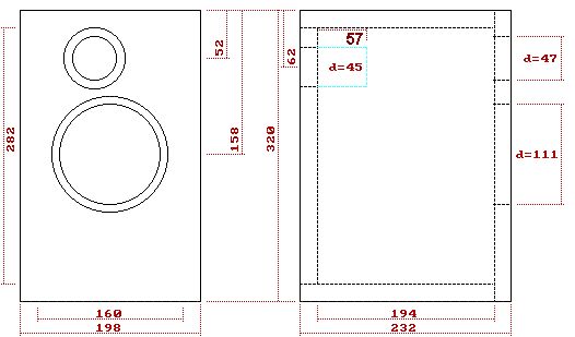
Gehäuse

Als Ausschnittdurchmesser des Baßreflexkanals (BRK) ist in der Zeichnung der wirksame Innendurchmesser des BRKs angegeben. Zu fräsen ist ein Durchbruch mit 63,5 - 64 mm Durchmesser.

Gehäuse - Schallwand
Die Hochtönereinfräsungen fertigen Sie symetrisch an, d.h. auf einer Schallwand links, auf der anderen rechts.


Der Chassisausschnitt des Tiefmitteltöners muß vor dem Verleimen des Gehäuses angebracht werden, da dieser eine Hinterfräsung benötigt, damit das Holz nicht die Öffnungen des Chassiskorbes abdeckt. Die Anschrägung kann mit der Oberfräse (Abrund- oder Fasenfräser) oder zur Not auch von Hand mit der Rundfeile angebracht werden. Das sollte dann ungefähr so aussehen.

Holzzuschnitte
Die fett gedruckten Größenangaben beinhalten einen Zuschlag für Leimfugen. Die dadurch leicht überstehenden Kanten werden mit dem Bündigfräser oder Schwing-/Band-Schleifer egalisiert. Das geht wesentlich einfacher und schneller, als das Schleifen überstehender Flächen. Bei der Bemessung der (fett gedruckten) Übermaße wurde von der Verwendung von Holz- oder Fugenleim (schmale Klebefugen) ausgegangen. Wenn Sie Montagekleber verwenden, dann addieren Sie zu den fett gedruckten Übermaßen einen zusätzlichen Millimeter.
TIP: Bitten Sie den Zuschneider, bei allen Brettern die Maße 16 und 21,3 mit gleichbleibender Sägeeinstellung zuzuschneiden, dann wird alles gut zusammenpassen. Die exakten Werte sind gar nicht so wichtig, Hauptsache alle Bretter haben für die beiden Werte die exakt gleichen Maße. Es empfiehlt sich, den Mann an der Säge mit einem vorab verabreichten Trinkgeld (EUR 1,- bis 2,- sind angemessen) zu exaktem Arbeiten zu motivieren. Das spart jede Menge Ärger beim Verleimen und ist den Obulus allemal wert.
| Teil | Stück | Material | Stärke mm |
Länge cm |
Breite cm |
| Deckel + Boden | 2 | MDF | 19 | 16 | 21,3 |
| Seiten | 2 | MDF | 19 | 32,2 | 21,3 |
| Rückwand | 1 | MDF | 19 | 28,2 | 16 |
| Front | 1 | MDF | 19 | 32,2 | 20 |
Gehäusebau
Die Beschreibung des Gehäusebaus entnehmen Sie bitte sinngemäß der Baubeschreibung CT218BR. Achten Sie beim Einfräsen der Baßreflexkanäle auf die symetrische Anordnung, d.h. bei einer Box links, bei der anderen rechts auf der Rückwand. Dies ist besonders wichtig, wenn die Boxen nahe einer Wand angewinkelt stehen sollen, da dadurch ein größerer Wandabstand gewährleistet wird, als bei mittiger Montage des BRKs. Der BRK wird an der gleichen Seite wie der Hochtöner eingefräst.

Der Baßreflexkanal TR45 wird vor dem Einbau auf 7,6 cm Länge gekürzt.
Als Leim empfehle ich PONAL Fugen-Leim. Dieser bietet eine hohe Anfangshaftung, ist ohne Schraubzwingen zu verarbeiten und hat bereits nach einer halben Stunde eine hohe Festigkeit. Gegenüber Montagekleber bietet er den Vorteil der kleinen Leimfugen (wie Weissleim).
MITA II asym Messungen Gehäuse und Holzzuschnitte Frequenzweiche Stückliste